數據中心配電改造是一個復雜的項目,需要滿足多種特定的要求和標準,其主要分為機房等級改造、配電節能改造以及機房面積優化改造三部分。
根據國標GB50174-2017《數據中心設計規范》,數據中心劃分為A、B、C三級。設計時會根據數據中心的使用性質,數據丟失或網絡中斷在經濟、社會上造成的損失和影響程度確定所屬級別。從配電方面來說,A、B、C三級在供電電源、變壓器架構、后備柴油發電機及其燃料存儲系統、不間斷電源系統、空調系統配電、變電所物理隔離方面均有不同的要求。
1.供電電源改造
國標GB50174-2017《數據中心設計規范》中對于A、B、C三級數據中心供電電源的具體要求如下:
C級機房僅需要從同一個高壓站引兩路電源即可;若C級機房改B級機房,在有條件的情況下,應由不同的高壓站各引一路電源;若C級機房改A級機房,則必須由不同的高壓站各引一路電源,在一路電源故障時,另一路電源不應同時受到損壞。

2.變壓器架構改造
國標GB50174-2017《數據中心設計規范》中對于A、B、C三級數據中心變壓器架構的具體要求如下:

C級機房不需要考慮變壓器的冗余;若C級機房改B級機房,需在現有變壓器的基礎上多增加一臺備用變壓器,當任意一臺工作變壓器故障時,可由備用變壓器代替供電;若C級機房改A級機房,則變壓器容量需按實際負載的兩倍配置。

3.后備柴油發電機系統改造
國標GB50174-2017《數據中心設計規范》中對于A、B、C三級數據中心后備柴油發電機系統的具體要求如下:

C級機房不需設置柴發系統;若C級機房改B級機房,在雙路高壓電源供電時,不需設置柴發系統,只有在單路供電時,需按N+1冗余設置柴發;若C級機房改A級機房,則不論高壓電源數量,均需按N+X冗余設置柴發系統,一般X取1。
4.柴油發電機燃料存儲系統改造
國標GB50174-2017《數據中心設計規范》中對于A、B、C三級數據中心后備柴油發電機燃料存儲系統的具體要求如下:

C級、B級機房無柴發儲油量要求;若C級、B級機房改A級機房,則需設置埋地油罐,儲油量按12小時柴發用油考慮,油罐、油泵也需考慮一用一備。當設置注油口時,儲油量可維持柴發運行至外部供油時即可。

5.不間斷電源系統架構改造
國標GB50174-2017《數據中心設計規范》中對于A、B、C三級數據中心不間斷電源系統架構的具體要求如下:

A級數據中心同時滿足下列要求時,電子信息設備的供電可采用不間斷電源系統和市電電源系統相結合的供電方式。
(1)設備或線路維護時,應保證電子信息設備正常運行;
(2)市電直接供電的電源質量應滿足電子信息設備正常運行的要求;
(3)市電接入處的功率因數應符合當地供電部門的要求;
(5)向公用電網注入的諧波電流分量(方均根值)不應超過現行國家標準《電能質量公用電網諧波》GB/T14549規定的諧波電流允許值。
當兩個或兩個以上地處不同區域的數據中心同時建設,互為備份,且數據實時傳輸,業務滿足連續性要求時,數據中心的基礎設施可按容錯系統配置,也可按冗余系統配置。
C級機房UPS按設備總容量選型即可,不需要冗余;B級機房UPS每四臺之外還要設置一臺冗余UPS,以備四臺中的一臺故障時接替其供電;A級機房可按照市電情況選擇2N架構或者一路市電、一路UPS架構,一般項目均采用2N架構。
國標GB50174-2017《數據中心設計規范》中對于A、B、C三級數據中心不間斷電源系統旁路及備用時間的具體要求如下:
C級機房不需要設置UPS自動轉換旁路和手動維修旁路;若C級機房改B級、A級機房,需新增上述旁路。C級機房無UPS備用時間要求;B級機房UPS備用時間要求7分鐘;A級機房UPS備用時間要求15分鐘。
國標GB50174-2017《數據中心設計規范》中對于A、B、C三級數據中心空調系統配電的具體要求如下:
C級機房無冷機末端切換要求;若C級機房改B級、A級機房,則部分冷機需做末端互投,以保證在一個變電所完全斷電時,另一個變電所可以帶載滿足機房冷卻工況的全部冷機。
國標GB50174-2017《數據中心設計規范》中對于A、B、C三級數據中心變電所物理隔離的具體要求如下:
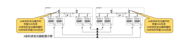
C級、B級機房無變配電所物理隔離要求;若C級、B級機房改A級機房,則每個變電所之間需做物理隔離。若配電系統采用2N構架,則至少需要設置兩個物理隔離的變電所,每個變電所平時各帶50%負荷,當一個變電所完全斷電時,另一個變電所帶載100%負荷。若配電系統采用2+1的DR構架,則至少需要設置三個物理隔離的變電所,每個變電所平時各帶66%負荷,當其中一個變電所完全斷電時,另兩個變電所帶載100%負荷。
許多老舊的數據中心設備效率較低,能耗較高,使用更高效的設備升級替換老舊設備可以降低能耗。例如使用更節能的變壓器、更高效的UPS等。
選擇高效的供電設備可以降低能耗并提高供電效率,如:干式變壓器改為非晶合金變壓器后,可降低變壓器總損耗30%。其對比傳統變壓器的節能效果如下:
非晶合金變壓器對比傳統變壓器,空載損耗下降約2/3,空載電流下降約70%,具有更好的節能效果。通常,在變壓器30年的有效周期壽命內,變壓器的運行成本要高達制造成本的6~7倍,而能耗電費是運行成本的主要組成部分,變壓器空載損耗的降低不僅能提高我國電力利用率,降低電力浪費,還能為用戶節省運行成本,提高經濟收益。
UPS設備是數據中心供電系統的核心設備之一,其效率直接影響供電系統的能耗。選擇高效的UPS設備,可以降低能耗并提高供電系統的可靠性。
上海某銀行老舊UPS改為高效節能型UPS后,運行效率可從90%提升至97%。
同時,UPS動態在線功能也在很多廠家的產品中實現,其采用自適應智能算法,可做到在網絡故障(電壓變化、低阻抗/高阻抗主電源故障)和負載故障(UPS下游短路)時0ms快速切換。采用UPS動態在線功能后,其運行效率可高達99%。
項目可根據當地情況增加光伏儲能一體化設備,光伏、谷電、平電為儲能系統充電,峰電時段儲能系統放電,減少機房用電成本。
(1)采用“并網不上網”的運行方式,根據數據中心所在地峰平谷時間區間與電價情況,儲能系統可采用不同的充放策略。
(2)光伏發電、谷電及平電時段的市電為儲能系統充電;峰電時段儲能系統供電,不足部分由市電補充。
(3)減少數據中心用電成本,提高經濟收益;光儲一體化最多可降低綜合PUE0.035。
數據中心劃分為許多功能區,隨著IT機架功率密度的提高,輔助區域占地面積比例也越來越高。在輔助區域中供電設施的占用面積最大,據統計,中壓變配電設備、低壓配電設備、電能質量處理設備、不間斷電源設備、電池設備及其輔助系統占地面積一般超過數據中心機柜面積的50%以上,隨著單IT機柜功率增加,其比例更高,這部分供電設備嚴重擠占了IT機柜的可用面積。
如何減少數據中心供電系統的占地面積,提高數據中心機柜占地面積,提高數據中心空間利用率和土地資源利用率已經成為數據中心建設與改造的關鍵。
預制化電力模組精簡了中間環節,設備的使用量變少,結構上設計緊湊,減少了電纜等材料的工程施工量,投資成本大大節省,同時還可節省機房面積。
UPS采用鋰電池已經成為未來的發展趨勢,UPS鉛酸電池改為鋰電池后,可節省機房面積60%,機房承重減少70%,相應減少機房的土建成本。同時,其具備多項遠超傳統鉛酸電池的優勢,具體如下:
盡管鋰電池具備諸多優勢,但在不間斷電源中使用鋰電池對于閥控鉛酸蓄電池而言還相對較新,后者仍是當下普遍采用的主導儲能技術。隨著鋰電池成本的持續下降,其優勢會更加廣為人知,且隨著廠商不斷將其UPS打造得更具兼容性,這一格局有可能發生改變。
新增的柴油發電機可采用集裝箱式,放置于室外,可節省機房面積,相應減少機房的土建成本。
總之,數據中心配電改造是一個需要高度關注的項目,需要仔細評估現有系統、制定詳細的計劃、選擇合適的設備、設計合理的配電架構,并綜合考慮多個方面、采用多種解決方案來提高數據中心的能源利用效率,降低能耗,實現數據中心的綠色發展。