數據中心,即集中放置的電子信息設備提供運行環境的建筑場所,包括主機房、輔助區、支持區和行政管理區等。本文主要介紹數據中心建筑設計的方案布置、消防設計、機電方案建筑相關設計等,分析數據中心常規建筑設計要點,以供設計同行參考。
一、引言
隨著我國各地區、各行業數字化轉型的深入推進,我國數據中心市場規模將保持持續增長態勢,目前我院接觸的數據中心項目主要以6kW左右每機架為主,未來伴隨技術進步和業主對新技術應用的接受程度,也將會有更多更大單功率的機架投入市場。本文主要以6kW為主的單機架功率設計工程項目案例為主要分析對象,著重分析數據中心建筑設計過程中遇到的問題和工程經驗總結,以供同行業參考,個人總結難免有錯誤和理解不足之處,望設計同行批評指正。
二、前期需求及規模確定
業主在建設數據中心前期時,需由專業的前期開發團隊評估項目可行性,并選好開發城市及預選項目用地,與國土資源管理部門及時跟蹤預選項目開發用地情況。
企業如需確定投資項目,應到發改委或經信委管理部門做好項目備案和立項,并同時按照下列步驟聘請具有相關資質的單位配合制作相應報審文件:
1.1 聘請專業節能公司編寫項目節能報告提交給發改委管理部門進行審核批準;
1.2 提交環境影響評估資料給環保局管理部門進行審查報批;
1.3 提交交通影響評估資料給交通局管理部門進行審查報批;
1.4 提交供電方案設計文件及需求給電力局管理部門進行審查報批;
1.5 提交供水方案設計文件及需求給水務局管理部門進行審查報批等。
同時,應進行土地招拍掛相關流程跟蹤及確認,并做好國有土地成交合同簽署,做好規劃局批復相關建設用地使用條件,及時提供給設計院進行建筑規劃及報規設計文件深化,提供給規劃部門進行審核確認,批復建設工程規劃許可證。
此部分屬于土建的報審階段,一般新建的數據中心項目開發流程都是按照大開敞空間丙類廠房報規,到后續的施工圖設計合格后,進行土建開發施工階段,此階段的土建施工圖應落實機電工藝設計的土建相關條件,以免后續機電深化增加不必要的施工成本。
經過節能審批和報規文件等通過后,建設項目的建筑規模及總機架數量,總用電量等指標都會確定下來,同時機電深化在土建報規前也應該開展,以免后續機電深化影響報規文件的修改。

圖示1
三、數據中心等級劃分
各種類型的數據中心建設規模及要求差異較大,因此數據中心在建設前應與業主確認好本項目數據中心的等級要求,不同的數據中心等級會造成機電設計有較大的不同,甚至影響整個數據中心的方案可行性。
依據《數據中心設計規范》(GB50174-2017),主要將數據中心分為A、B、C三級:
A級電子信息系統機房,應按照容錯系統配置,運行期間,場地設備不應因操作失誤、設備故障、外電源中斷、維護和檢修而導致電子信息系統運行中斷。
B級電子信息系統機房,應按照冗余要求設置,場地設備在冗余能力范圍內,不應因設備故障而導致電子信息系統運行終端。
C級電子信息系統機房,應按基本需求配置,應保證電子信息系統運行不中斷。
四、數據中心選址及總圖規劃
4.1 數據中心選址
應首先考慮具體的需求地區,且應盡可能靠近主要應用城市,同時應考慮電力、通信、交通、水源、自然環境等問題:
4.1.1 電力
數據中心用電量一般都比較大,應考察建設地用電的電量供應及穩定性;
4.1.2 通信
數據中心應靠近核心網絡節點,從而減少網絡延遲;
4.1.3 交通
道路盡可能多且暢通,滿足及時支援需求;
4.1.4 水源
數據中心散熱主要由空調系統來處理解決,其中主要兩種方式,第一空氣冷散熱,第二就是水蒸發散熱,水蒸發散熱每天每千瓦IT設備耗水量約為100L,如下公式:循環冷卻水量(m³/h)=IT負載(KW)x(0.25~0.30),小時補水量為:循環水量(m³/h )x1.4%,一天為24h;例如:6000kw的IT設備,每天耗水量為:6000x0.25x0.014x24=504噸,一年需要504x365=183960噸,因此,采用水蒸發冷卻方式的制冷數據中心,水源應充足;
4.1.5 自然環境
建設不同地區的數據中心,其環境溫度,空氣潔凈度等指標不同,會造成成本不同,其選擇盡可能有利于節約能源的地區。
4.2 總圖規劃
對于已經選好的建設用地地塊,在滿足規劃技術條件的情況下,應主要考慮一下主要內容設計:
4.2.1 豎向設計
新建的A級數據中心首層正負零絕對標高應高出當地洪水百年重現期水位線1.0m以上,并應高出室外地坪0.6m以上,同時應高與四周道路絕對高程,以防內澇;
4.2.2 分期規劃
應結合業主需求,確定好分期實施,一般數據中心分土建階段和機電階段,業主為了控制投資一般會分期實施,以適應資金需求及客戶變化需求;土建開發階段主要以大開敞丙類廠房進行申報,待竣工驗收后,進行機電施工,對于客戶需求變化較大的,可能會涉及拆改和結構加固。
4.3 建筑布局
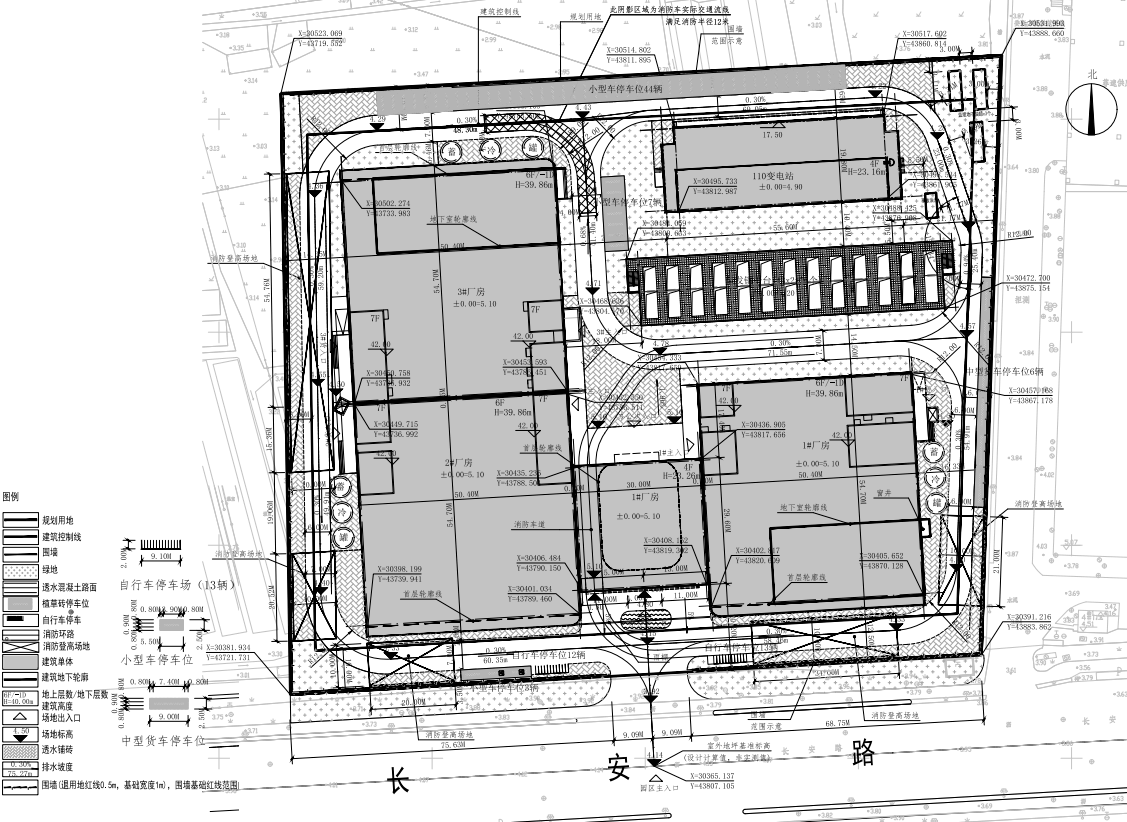
總圖各樓棟布局應同時考慮防火間距要求、消防車道布置、柴發鋼平臺、蓄冷罐布置、儲油罐位置、對周邊地塊日照、噪音影響、貨車運輸路徑及轉彎半徑裝卸操作距離、雨水收集池、地下管溝位置等。

圖示2 項目案例總圖布置
五、數據中心建筑設計
5.1 平面布局
5.1.1 分期需求
數據中心平面設計也應按照業主運營需求做好分期規劃,如按層分期或者按照機房分期等;同一個數據中心樓業主可能會租給N個承租方,但每個承租方由于自身業務的需求不同,對于數據機柜的要求也不盡相同;
5.1.2 機架尺寸及間距
其中機架常規尺寸(寬mm×深mm×高mm)IT設備:600×1200×2200;
傳輸設備:600×600×2200。
成行排列的機架長度不超過15m時;通信機房內機架間距均為1200mm;機房內主運輸搬運通道的寬度為1.5m,次通道的寬度不小于1m。以上尺寸主要相對于6KW的機柜來說,但對于高于6kw的單機柜,比如8KW或者10kw等,他們直接的排列間距可能要求更大,由原來的1.2m擴寬到1.5m甚至1.8m不等,主要是為了滿足機柜的通風散熱需要,單機柜功率越高,所產生的熱量越高,因此對于機柜的散熱要求越高;
5.1.3 功能流線
數據中心的建筑設計流線主要分為運營流線,設備運輸流線,機房參觀流線,每個流線應避免交叉,機房的流線主要圍繞數據機房來設計,其中,高壓機房、分界室、并機室、冷凍站、ECC監控室、通信機房等主要布置在首層位置,二層及以上根據數據機房的布置,布置相應的低壓機房、電池室、UPS間等;
5.1.4 防火及節能
數據中心一般以工業建筑或者民用建筑為主要申報類型,是否工業或者民用主要以用地類型為準,一般工業用地,數據中心建筑按照丙類廠房來定性,如多功能用地或者其他類型用地,數據中心建筑按照民用建筑來定性;對于具體的防火要求,就可按照數據中心本身是按照民用建筑還是工業建筑來定性,可查閱《建筑設計防火規范》GB50016-2014等規范相關防火部分章節進行深化設計。對于數據中心的節能,有的地方無節能要求,有的地方申報是需要節能計算書、節能專篇等內容,具體以申報地方政府審查職能部門要求為準,節能也和防火相類似,具體的數據中心是以工業建筑還是民用建筑申報,分別查閱的節能規范不同,其中工業建筑節能以《工業建筑節能設計統一標準》GB51245-2017為主,民用建筑節能以《公共建筑節能設計標準》GB50189-2015以及地方規范為準。
5.2 立剖面設計
數據中心的剖面高度一般需結合具體的暖通技術要求中的設備尺寸為準,一般常用高度有5m、5.5m、6m,其中也有的項目設計中低于5m的,但具體的項目實施由于采用的設備廠家尺寸不同,需要建筑高度也不盡相同,如業主已有確定好的設備廠家,應盡可能的滿足設備要求,以合理的層高節省項目土建成本,但也不能只考慮盡可能節省成本不考慮后期的設備廠家更換,土建成本對于機電的成本來說簡直九牛一毛,還是要以機電工藝需求為主,同事還要考慮后期的變更需求。數據中心的立面設計一般是以簡介工業風為主,因為數據中心的立面開窗要求較少,盡可能減少對于機房等電氣房間的影響,由于立面開窗少,同事也對消防的立面救援窗、防排煙需求、立面效果設計等提高了挑戰。例如有些數據中心由于整個面都沒有都沒有開窗,所以有些消防救援窗只能開在四角樓梯間,雖然防火規范條文中沒有明確是否可以開在樓梯間,但是從逃生的流線角度考慮,樓梯間是發生火災后主要的逃生通道,消防人員同時在樓梯間破窗而入,肯定會造成人流沖突,不利于救火(數據中心實際的運維人數很少,也是可以實施的)。

圖示3 平面空間布局示意
六、機電設計技術要點
6.1 給排水技術要點
數據中心的給排水對于建筑布局的影響,地上主要就是鋼瓶間、高位水箱間等,地下主要是消防水泵房及水池、補水機房及水池、生活水泵房及水池等;有些項目由于市政條件的限制,可能需要中水處理機房等需求;對于建筑的布局也是有些影響的,這個前期都應該和業主確認好市政條件,以免影響整個項目的時間進度。對于防火末端給排水主要分為氣滅和噴淋區域,氣滅主要應用于電房間,噴淋主要應用于走廊等非電氣房間。整體來說給排水專業在數據中心的設計當中對于建筑的布局影響相對較小。
6.2 暖通技術要點
對于不同地區不同的項目要求,PUE也不盡相同,PUE的指標要求,主要還是靠暖通的技術方案來滿足,不同的PUE要求值,可能會影響整個暖通的機電方案,同時影響建筑的布局,PUE要求越低,目前的相匹配的常規技術方案是間接蒸發系統、新型磁懸浮整體式氟泵系統,液冷技術也是用來滿足單機柜大功率,能耗更低的項目,但是液冷技術目前業主實施的較少,伴隨著以后技術越來越成熟可能也會大面積實施。目前數據中心設計領域主要還是間接蒸發、氟泵系統、水冷系統等,末端主要采用列間空調、空調機房等。對于建筑布局來說,暖通專業最大的建筑面積就屬冷凍站,一般需要1000㎡左右,其余還有一些項目可能會涉及到機房空調、新風機房、屋頂冷卻塔、排煙機房、補風機房等。
6.3 電氣技術要點
數據中心電氣專業主要分為供電專業、電照專業,弱電智能化專業,這個要比民用建筑電氣專業要分的更細,因為數據中心主要在供配電這塊,也是機電專業比較重要的專業內容。弱電智能化主要設計一些消防報警、安防、智能化、通信機房等,對于建筑布局來說,影響不是很大,主要涉及通信機房、ECC、消防控制室等弱電房間。對于建筑布局影響較大的還是供配電專業,不同的數據中心等級要求不一樣,A級數據機房需要容錯2N系統,比B級、C級機房要求的建筑面積更多,因為不僅要做兩套系統的房間,還涉及到柴油發電機房。
對于A級數據中心供配電系統主要有3種架構:2N系統、DR系統、RR系統。
2N系統主要由2個供配電單元組成(建筑專業理解也就是兩個相同的供配電房間),每個單元負載50%的負荷;一個單元故障另一個單元完全負載100%。
DR系統N≥3個供配電單元組成,每個單元負載66%的負荷,相鄰2個單元供電,其中1個單元故障時,剩下1個單元繼續與另1個單元繼續供電。
RR系統由多個供配電單元組成,其中一個單元作為其他運行單元的備用(也叫后備冗余),當一個運行單元故障,通過電源切換裝置,備用單元繼續為負載供電。
其中2N系統是最優的,不僅供電可靠而且系統架構簡單,國內數據中心采用2N的也最多。對于建筑布局來說,供配電專業主要有高壓機房、并機室、柴油發電機房、低壓配電室、電池室等,也是數據中心設計中除了數據機房房間外,建筑面積占用最多的專業。
七、結束語
數據中心設計與民用建筑不同,不再以建筑專業為主導專業,數據中心更趨向于以供電專業為主導,制冷方案為輔的項目。作為建筑專業設計人員,要想做好數據中心項目,我們更應該多了解供配電的系統原理及各電氣機房方案細節要求,同時對制冷的新技術、原理不同的優缺點,應多總結多交流,才能為后面的數據中心建筑設計做好準備。
參考文獻:
[1]新基建:數據中心規劃與設計/鐘景華等編著.——北京:電子工業出版社,2021.1(新基建叢書)
[2] GB50174-2017數據中心設計規范.北京:中國計劃出版社,2017
[3]數據中心供配電技術與設計/郭武主編—北京:機械工業出版社,2022.5